
A feltüntetett bruttó árak tartalmazzák az áfát.
Lakás B5
Csillagfény Lakópark

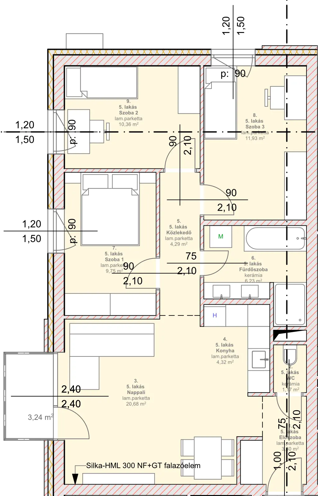
Eladó első emeleti világos otthon extra kényelmi funkciókkal: három különálló szoba, zuhanyzó plusz kádas fürdőszoba, energiatakarékos okos bojler, modern multi klíma rendszer. Ideális nagyobb családnak vagy tágas életteret keresőknek.
| Szint | Helyiség | Mért terület |
|---|---|---|
| 1. szint | Előszoba | 3,80 ㎡ |
| 1. szint | WC | 1,17 ㎡ |
| 1. szint | Nappali | 20,68 ㎡ |
| 1. szint | Konyha | 4,32 ㎡ |
| 1. szint | Közlekedő | 4,29 ㎡ |
| 1. szint | Fürdőszoba | 6,23 ㎡ |
| 1. szint | Szoba 1 | 9,75 ㎡ |
| 1. szint | Szoba 3 | 11,93 ㎡ |
| 1. szint | Szoba 2 | 10,36 ㎡ |
Össz terület:
72,53 ㎡ (nettó)
Ár:
68,80 M Ft
Amennyiben ingatlan mellé gépkocsi beállót és tárolót is vásárolna, a tároló ajándékként jár!
Lakásokhoz opcionálisan vásárolható 3㎡-es tároló
1 350 000 Ft-os áronLakásokhoz opcionálisan vásárolható saját parkolóhely
1 530 000 Ft-os áronLakásokhoz opcionálisan elektromos autó töltőállomás kiépítése igényelhető - egyedi ajánlat alapján
Ez a lakás elérhető
→ ugrás a kapcsolatfelvételhezTovábbi lakások
Ismerje meg a Csillagfény Lakópark egyedi adottságait, valamint lakásaink legfontosabb tulajdonságait.
Bemutató megtekintése
Örömmel tölt el bennünket hogy bemutathatjuk épülő lakóparkunkat! Kollégánk szívesen válaszol bármely felmerülő kérdésre. Keressék bizalommal az alábbi elérhetőségeken, vagy a kapcsolat űrlap kitöltésével.

Apró Renáta
Értékesítő kolléga