
A feltüntetett bruttó árak tartalmazzák az áfát.
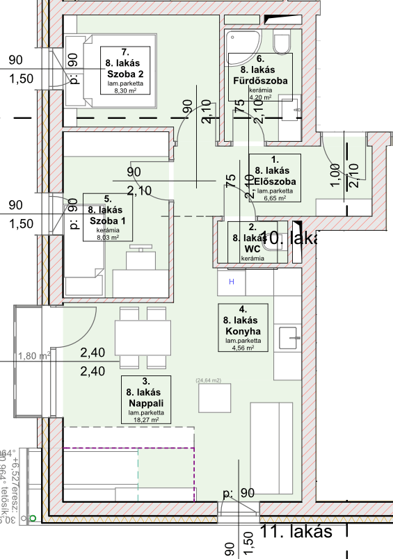
Lakás A8
Csillagfény Lakópark

| Szint | Helyiség | Mért terület |
|---|---|---|
| 2. szint | Előszoba | 6,65 ㎡ |
| 2. szint | WC | 1,35 ㎡ |
| 2. szint | Nappali | 18,27 ㎡ |
| 2. szint | Konyha | 4,56 ㎡ |
| 2. szint | Szoba 1 | 8,03 ㎡ |
| 2. szint | Fürdőszoba | 4,20 ㎡ |
| 2. szint | Szoba 2 | 8,30 ㎡ |
Össz terület:
51,37 ㎡ (nettó)
Ár:
45,26 M Ft
Amennyiben ingatlan mellé gépkocsi beállót és tárolót is vásárolna, a tároló ajándékként jár!
Lakásokhoz opcionálisan vásárolható 3㎡-es tároló
1 350 000 Ft-os áronLakásokhoz opcionálisan vásárolható saját parkolóhely
1 530 000 Ft-os áronLakásokhoz opcionálisan elektromos autó töltőállomás kiépítése igényelhető - egyedi ajánlat alapján
Ez a lakás foglalt
→ ugrás a lakásválasztóhozTovábbi lakások
Ismerje meg a Csillagfény Lakópark egyedi adottságait, valamint lakásaink legfontosabb tulajdonságait.
Bemutató megtekintése
Örömmel tölt el bennünket hogy bemutathatjuk épülő lakóparkunkat! Kollégánk szívesen válaszol bármely felmerülő kérdésre. Keressék bizalommal az alábbi elérhetőségeken, vagy a kapcsolat űrlap kitöltésével.

Apró Renáta
Értékesítő kolléga