
A feltüntetett bruttó árak tartalmazzák az áfát.
Lakás B1
Csillagfény Lakópark

Hangulatos ingatlan tágas nappalival és egy szobával, illetve saját kerttel – tökéletes választás egyedülállóknak vagy pároknak. Okosbojlerrel felszerelt fürdőszoba és minden évszakban kellemes hőmérsékletet biztosító multi klíma rendszer.
| Szint | Helyiség | Mért terület |
|---|---|---|
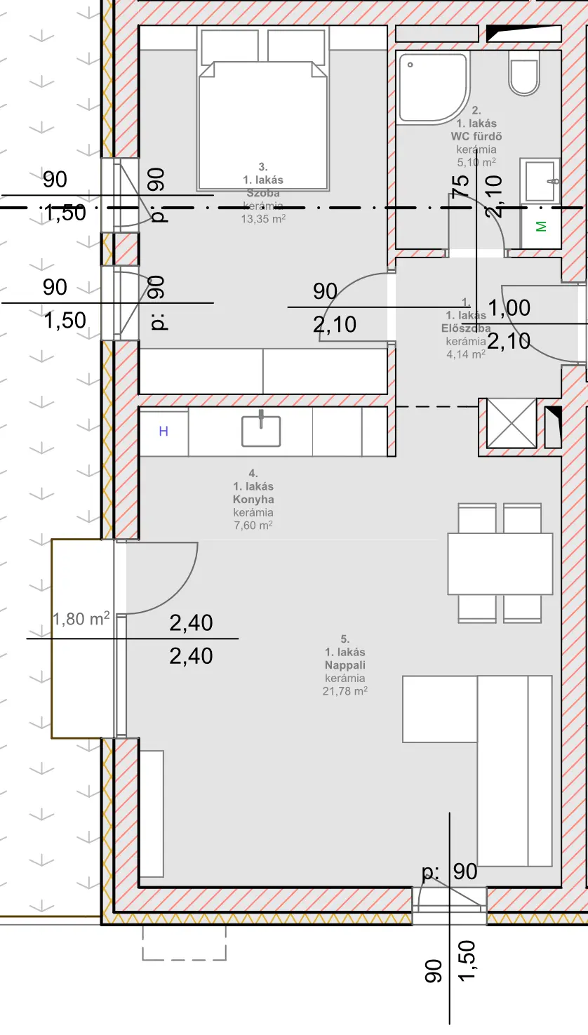
| 0. szint | Előszoba | 4,14 ㎡ |
| 0. szint | WC fürdő | 5,10 ㎡ |
| 0. szint | Szoba | 13,35 ㎡ |
| 0. szint | Konyha | 7,60 ㎡ |
| 0. szint | Nappali | 21,78 ㎡ |
Össz terület:
51,97 ㎡ (nettó)
Ár:
51,40 M Ft
Amennyiben ingatlan mellé gépkocsi beállót és tárolót is vásárolna, a tároló ajándékként jár!
Lakásokhoz opcionálisan vásárolható 3㎡-es tároló
1 350 000 Ft-os áronLakásokhoz opcionálisan vásárolható saját parkolóhely
1 530 000 Ft-os áronLakásokhoz opcionálisan elektromos autó töltőállomás kiépítése igényelhető - egyedi ajánlat alapján
Ez a lakás foglalt
→ ugrás a lakásválasztóhozTovábbi lakások
Ismerje meg a Csillagfény Lakópark egyedi adottságait, valamint lakásaink legfontosabb tulajdonságait.
Bemutató megtekintése
Örömmel tölt el bennünket hogy bemutathatjuk épülő lakóparkunkat! Kollégánk szívesen válaszol bármely felmerülő kérdésre. Keressék bizalommal az alábbi elérhetőségeken, vagy a kapcsolat űrlap kitöltésével.

Apró Renáta
Értékesítő kolléga